












Product Highlights
-
Doc MApproved Document M of the Building Regulations provides guidance to ensure buildings are accessible to and usable by disabled people. It supports compliance for washroom facilities across all building types and works alongside the Equality Act 2010, which requires reasonable adjustments to prevent disadvantage. When you see the Doc M icon, you can be confident the product supports accessible design and regulatory compliance. Find out more here.
-
Rimless ToiletRimless WCs are designed to deliver high standards of hygiene by removing the rim where bacteria can collect. This makes cleaning quicker and more effective. Efficient dual-flush technology reduces water usage, while the flush design ensures a powerful, even and splash-free clean.
-
TMV3TMV3 thermostatic mixing valves are designed for healthcare, education and commercial environments. They blend hot and cold water to maintain safe, consistent temperatures and prevent scalding, complying with NHS D08, HBN, SHTM and Doc M requirements. Find out more here.
-
WRASWRAS (Water Regulations Approval Scheme) is an independent UK certification body for plumbing products. WRAS approval confirms compliance with UK Water Supply Regulations and demonstrates that a product meets required standards for safety and water efficiency. Find out more here.
SanCeram Close Coupled WC Doc M Pack













Product Highlights
-
Doc MApproved Document M of the Building Regulations provides guidance to ensure buildings are accessible to and usable by disabled people. It supports compliance for washroom facilities across all building types and works alongside the Equality Act 2010, which requires reasonable adjustments to prevent disadvantage. When you see the Doc M icon, you can be confident the product supports accessible design and regulatory compliance. Find out more here.
-
Rimless ToiletRimless WCs are designed to deliver high standards of hygiene by removing the rim where bacteria can collect. This makes cleaning quicker and more effective. Efficient dual-flush technology reduces water usage, while the flush design ensures a powerful, even and splash-free clean.
-
TMV3TMV3 thermostatic mixing valves are designed for healthcare, education and commercial environments. They blend hot and cold water to maintain safe, consistent temperatures and prevent scalding, complying with NHS D08, HBN, SHTM and Doc M requirements. Find out more here.
-
WRASWRAS (Water Regulations Approval Scheme) is an independent UK certification body for plumbing products. WRAS approval confirms compliance with UK Water Supply Regulations and demonstrates that a product meets required standards for safety and water efficiency. Find out more here.
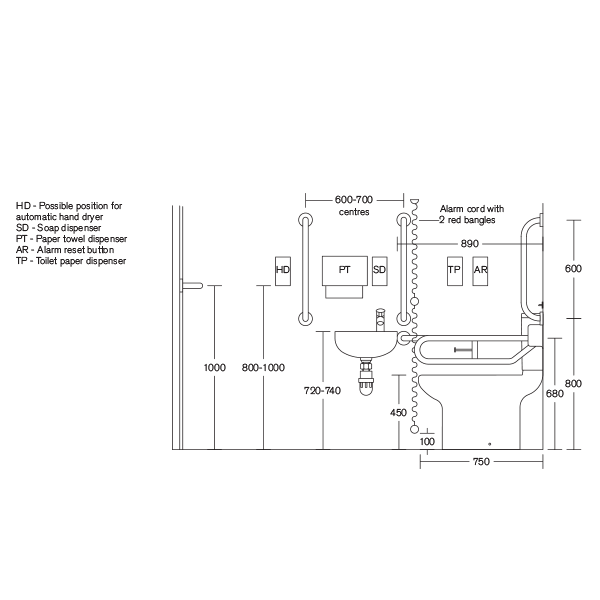
Our SanCeram Close Coupled WC Doc M Pack provides a practical, fully compliant solution for commercial accessible washrooms. Supplied as a complete pack and featuring an extended-projection rimless WC for improved hygiene, it is available in four colour options to support LRV contrast requirements while coordinating with the overall washroom design.
Price range: £719.00 through £1,050.00 exc. VAT
Free UK Delivery for orders over £500
Description
Our SanCeram Close Coupled WC Doc M Pack has been designed to deliver a reliable, regulation-ready accessible WC solution for commercial environments. Fully compliant with Doc M and DDA requirements, the pack includes all essential components to ensure the installation is fit for purpose and meets current accessibility standards.
The close coupled rimless WC design improves hygiene by eliminating concealed edges where dirt and bacteria can accumulate, while also supporting efficient flushing to help reduce water consumption. With grab rails and a coordinated WC seat supplied in White, the pack provides clear visual contrast, ideal for a range of commercial, education, healthcare, and public-sector projects.
Pack includes:
Chartham Close Coupled 750 Projection Toilet Pan with Cistern – CHWC107
Single tap hole wash hand basin – Left handed tap hole basin: CHWB101 or Right handed tap hole basin: CHWB102
Strainer waste – TSWC102
Bottle trap – A10R
TMV3 sequential mixer tap – SCBW120
5 x Straight grab rails – White: GRAB102, Blue: GRAB105 or Dark Grey: GRAB111
1 x Hinged grab rail – White: GRAB103, Blue: GRAB106 or Dark Grey: GRAB112
1 x WC back rest – White: GRBR101, Blue: GRBR102 or Dark Grey: GRBR103
Features
- Close Coupled WC Doc M compliant pack available in left and right handing
- Grab Rails available in White, Blue, Dark Grey, and Stainless Steel
- 750mm projection rimless WC for improved hygiene and reduced water usage
- Doc M & DDA compliant
Specifications
| Product Type | Close Coupled WC Doc M Packs |
|---|---|
| Sector | Commercial, Doc M, Education, Industrial, Leisure, Residential |
| Product Highlights | Doc M, Rimless Toilet, TMV3, WRAS |
| Colour | Blue, Dark Grey, Stainless Steel, White |
| Handing | Left, Right |
| Environment | Wet Environments except Powder Coated Finishes |






