














Product Highlights
-
Doc MApproved Document M of the Building Regulations provides guidance to ensure buildings are accessible to and usable by disabled people. It supports compliance for washroom facilities across all building types and works alongside the Equality Act 2010, which requires reasonable adjustments to prevent disadvantage. When you see the Doc M icon, you can be confident the product supports accessible design and regulatory compliance. Find out more here.
-
Non StandardThese products are special-order, non-standard items with extended lead times. Once ordered, they cannot be cancelled or returned. Please ensure all specifications are confirmed before purchase.
-
Rimless ToiletRimless WCs are designed to deliver high standards of hygiene by removing the rim where bacteria can collect. This makes cleaning quicker and more effective. Efficient dual-flush technology reduces water usage, while the flush design ensures a powerful, even and splash-free clean.
-
TMV3TMV3 thermostatic mixing valves are designed for healthcare, education and commercial environments. They blend hot and cold water to maintain safe, consistent temperatures and prevent scalding, complying with NHS D08, HBN, SHTM and Doc M requirements. Find out more here.
-
Water SavingOur water-saving products reduce consumption through low-flow rates, dual-flush cisterns and automatic shut-off systems. They help lower utility costs, minimise environmental impact and support sustainability and regulatory compliance in commercial environments.
Armitage Shanks Contour 21+ Close Coupled WC Doc M Pack















Product Highlights
-
Doc MApproved Document M of the Building Regulations provides guidance to ensure buildings are accessible to and usable by disabled people. It supports compliance for washroom facilities across all building types and works alongside the Equality Act 2010, which requires reasonable adjustments to prevent disadvantage. When you see the Doc M icon, you can be confident the product supports accessible design and regulatory compliance. Find out more here.
-
Non StandardThese products are special-order, non-standard items with extended lead times. Once ordered, they cannot be cancelled or returned. Please ensure all specifications are confirmed before purchase.
-
Rimless ToiletRimless WCs are designed to deliver high standards of hygiene by removing the rim where bacteria can collect. This makes cleaning quicker and more effective. Efficient dual-flush technology reduces water usage, while the flush design ensures a powerful, even and splash-free clean.
-
TMV3TMV3 thermostatic mixing valves are designed for healthcare, education and commercial environments. They blend hot and cold water to maintain safe, consistent temperatures and prevent scalding, complying with NHS D08, HBN, SHTM and Doc M requirements. Find out more here.
-
Water SavingOur water-saving products reduce consumption through low-flow rates, dual-flush cisterns and automatic shut-off systems. They help lower utility costs, minimise environmental impact and support sustainability and regulatory compliance in commercial environments.
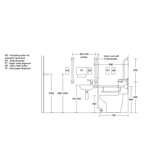
The Armitage Shanks Contour 21+ Close Coupled WC Doc M Pack provides everything required for a compliant Doc M toilet solution. Available in six colours, you have the choice of White, Blue, Grey, Charcoal, Red and Stainless Steel Grab Rails so you can ensure DDA contrast is met.
Price range: £977.01 through £1,428.46 exc. VAT
Free UK Delivery for orders over £500
Description
The Armitage Shanks Contour 21+ Close Coupled WC Doc M Pack provides a complete solution for creating a fully Doc M compliant toilet facility. Supplied with all required components, it simplifies specification and installation while ensuring compliance with accessibility standards. Available in six colour options, White, Blue, Grey, Charcoal, Red and Stainless Steel grab rails, the pack allows designers to achieve appropriate DDA contrast to suit a wide range of environments.
Features
- Close Coupled WC Doc M compliant Pack
- Available in six colour options – White, Blue, Grey, Charcoal, Red and Stainless Steel grab rails
- Doc M and DDA compliant
Specifications
| Product Type | Close Coupled WC Doc M Packs |
|---|---|
| Sector | Commercial, Doc M, Education, Industrial, Leisure, Residential |
| Colour | Blue, Charcoal, Light Grey, Red, Stainless Steel, White |
| Handing | Left, Right |
| Environment | Wet Environments |





